MeinBezirk E-Businessmarathon 2025“ am 22.05.2025 auf dem Gelände des Schwarzl-Freizeitzentrums in Premstätten: vorübergehende Verkehrsbeschränkungen, Verkehrsgebote und Verkehrsverbote
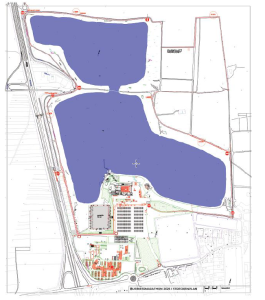
Aufgrund der Veranstaltung „MeinBezirk E-Businessmarathon 2025“ am 22.05.2025 gibt es in der Zeit von 11.00 Uhr bis 24.00 Uhr auf dem Gelände des Schwarzl Freizeitzentrums vorübergehend folgende Verkehrsbeschränkungen, Verkehrsgebote, Verkehrsverbote:
• ausgenommen der in diesem Plan eingezeichneten allgemeinen Fahrverbote im Bereich der L 397 und der Einfahrt Süd zum SFZ-Gelände
• für die Gemeindestraße Bäckweg (äußerer Seering) ist für die Zeit von 15.00 bis 18.30 Uhr für die von Norden kommenden Verkehrsteilnehmer ab der Kreisverkehrsanlage „Einfahrt Nord“ das Einfahren verboten
• auf der L 397, rechts im Sinne der Kilometrierung (Südseite) vom Bereich der östlichen Autobahnabfahrt der A 9 bis zur Kreisverkehrsanlage Schachenwald ein „Halte und Parkverbot“ gemäß § 52 lit.a Z13b StVO
• „Einbahnstraße“ ab der Einmündung Kreisverkehr „Schwarzl L 397 bei km 1,630“ auf der Gemeindestraße „Anton-Burli-Scherbinek-Straße“ Fahrtrichtung Süden
• „Einfahrt verboten“ ab der Einmündung „Nordweg“ auf der Gemeindestraße „Anton-Burli-Scherbinek-Straße“ in Fahrtrichtung Norden

Wir danken für Ihr Verständnis!
